FEIGE Famille (code 676)
210 Carlines - Chalet le Monte-Pente
2 personnes - 20 m²
Studio au rez de chaussée d'un grand chalet situé sur les pistes de ski de Megève Rochebrune. Espaces verts /parking.
Loueur : FEIGE Famille
Possibilité court séjour
Adresse de la location : 399 route de Lady Les Granges MEGEVE
Type de location : Appartement
Salle de bains / salle d'eau : Lavabo Douche. Sèche cheveux
Distance des pistes : Au pied des pistes
Distance du centre : 1 km




489 Edelweiss - Chalet Le Monte-Pente
5 personnes - 2 chambres - 52 m²
Appartement au 1er étage d'un grand chalet situé sur les pistes de ski de Megève-Rochebrune, . Espaces verts / parking.
Loueur : FEIGE Famille
Possibilité court séjour
Adresse de la location : 399 route de Lady les Granges MEGEVE
Type de location : Appartement
Salle de bains / salle d'eau : Lavabo Baignoire avec pare douche, lave-linge. Sèche-cheveux.
Distance des pistes : Au pied des pistes
Distance du centre : 1 km





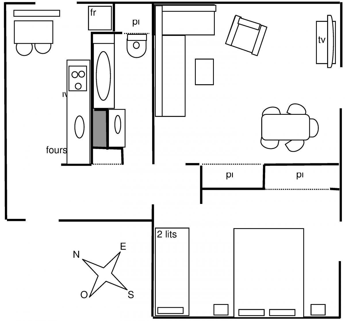
490 Gentianes - Chalet Le Monte-Pente
4 personnes - 2 chambres - 52 m²
Appartement au 1er étage d'un grand chalet situé sur les pistes de ski de Megève - Rochebrune. Espaces verts / parking.
Loueur : FEIGE Famille
Possibilité court séjour
Adresse de la location : 399 route de Lady Les Granges MEGEVE
Type de location : Appartement
Salle de bains / salle d'eau : Lavabo Baignoire avec pare douche, lave-linge. Sèche cheveux.
Distance des pistes : Au pied des pistes
Distance du centre : 1 km





491 Anémones - Chalet Le Monte-Pente
4 personnes - 1 chambre - 52 m²
Appartement au 2ème étage d'un grand chalet situé sur les pistes de ski de Megève-Rochebrune, Espaces verts / parking.
Loueur : FEIGE Famille
Possibilité court séjour
Adresse de la location : 399 route de Lady Les Granges MEGEVE
Type de location : Appartement
Salle de bains / salle d'eau : Lavabo Baignoire avec pare douche, lave-linge. Sèche cheveux.
Distance des pistes : Au pied des pistes
Distance du centre : 1 km





492 Lys orangés - Chalet Le Monte-Pente
4 personnes - 2 chambres - 57 m²
Appartement au 2ème étage d'un grand chalet situé sur les pistes de ski de Megève-Rochebrune. Espaces verts / parking.
Loueur : FEIGE Famille
Possibilité court séjour
Adresse de la location : 399 route de Lady Les Granges MEGEVE
Type de location : Appartement
Salle de bains / salle d'eau : Douche à l'italienne, Lavabo, lave-linge. Sèche cheveux.
Distance des pistes : Au pied des pistes
Distance du centre : 1 km





493 Ancolies - Chalet Le Monte-Pente
6 personnes - 2 chambres - 45 m²
Appartement en duplex au 2ème étage d'un grand chalet situé sur les pistes de ski de Megève-Rochebrune, Espaces verts / parking.
Loueur : FEIGE Famille
Possibilité court séjour
Adresse de la location : 399 Route de Lady Les Granges MEGEVE
Type de location : Appartement
Salle de bains / salle d'eau : 2 salles de bain, Lavabo, douche, baignoire, sèche cheveux
Distance des pistes : Au pied des pistes
Distance du centre : 1 km





600 Rhododendrons - Chalet Le Monte-Pente
6 personnes - 3 chambres - 72 m²
Appartement au 3ème étage d'un grand chalet situé sur les pistes de ski de Megève-Rochebrune, Balcon / espaces verts / parking.
Loueur : FEIGE Famille
Possibilité court séjour
Adresse de la location : 399 route de Lady Les Granges MEGEVE
Type de location : Appartement
Salle de bains / salle d'eau : Lavabo Baignoire avec pare douche, lave-linge. Sèche cheveux.
Distance des pistes : Au pied des pistes
Distance du centre : 1 km





605 Crocus - Chalet le Monte-Pente
6 personnes - 1 chambre - 45 m²
Appartement au 2ème étage d'un grand chalet situé sur les pistes de ski de Megève-Rochebrune, Espaces verts / parking.
Loueur : FEIGE Famille
Possibilité court séjour
Adresse de la location : 399 Route de Lady les Granges MEGEVE
Type de location : Appartement
Salle de bains / salle d'eau : Lavabo Baignoire avec douche. Lave-linge. Sèche cheveux
Distance des pistes : Au pied des pistes
Distance du centre : 1 km












